慶應義塾

三田演説館150年

公開日:2025.12.26

画像:移築前の三田演説館(慶應義塾福澤研究センター蔵)

三田演説館は日本初の演説会堂であり、福澤諭吉により建てられた。昭和42年に国の重要文化財に指定されている。完成は明治8(1875)年で、この頃の慶應義塾は、明治4年に新銭座(現浜松町)から三田に移転し、開校して間もない4年目に建てられた建物である。本年が開館150年にあたる。

福澤諭吉は欧米で見聞した「スピーチ」や「ディベート」が、人々が意見を表明し、議論を交わし、世論を形成していく近代社会に不可欠なものであると考えた。当時の日本には、大勢の前で自らの意見を述べるという文化はなく、福澤は「スピーチ」に「演説」、「ディベート」に「討論」という訳語をあて、これらの概念そのものを日本に紹介し、根付かせようとし、三田演説館は、そのための具体的な実践の場として建設されたものである。

演説館は、単に塾生の教育施設としてだけでなく、広く社会に向けた啓蒙活動の拠点でもある。多岐にわたるテーマで演説会が開かれ、これは、福澤が目指した「国民全体の知識レベルの向上」を具体化する場であった。三田演説館の意義は、「言葉の力によって社会を動かす」という近代的な価値観を、日本で初めて形にした点で、単なる重要文化財というだけでなく、日本の言論の自由、そして民主主義の発展の原点ともいえる歴史的なシンボルといえる。

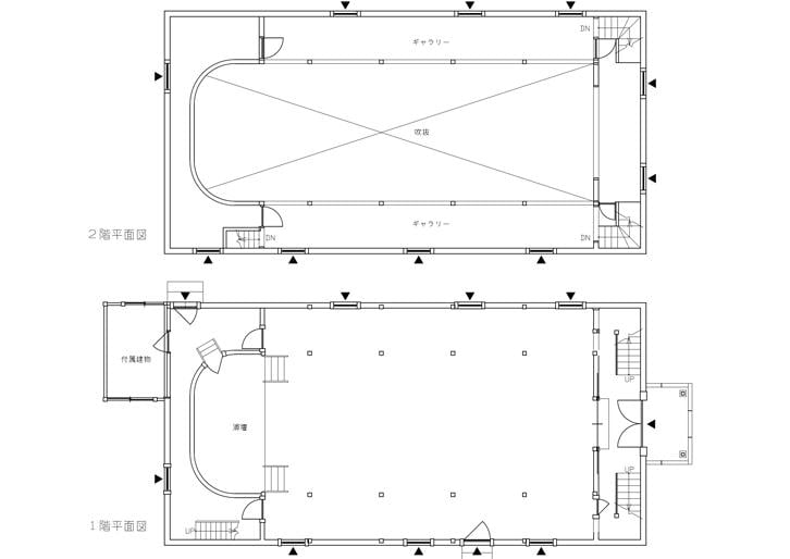
三田演説館1階・2階平面図

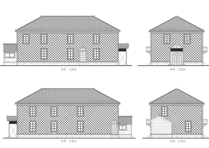
演説館は木造、2階建て、282㎡の小さい建物であるが、建築的にも価値が高い。明治初期の擬洋風建築で、外観は、日本の伝統的な「蔵造り」で外壁を漆喰で仕上げられ、防火、防湿、防盗の機能に優れている。演説館の外壁はなまこ壁を採用しており、独特の意匠で、外壁に一辺が1尺の正方形の「平瓦」をひし形状に貼り付け、その瓦の継ぎ目に、漆喰を蒲鉾状に盛りつけて塗る工法である。通常の土壁の蔵造りより、瓦を敷き詰めるため、高級で、耐火性に優れたものである。

三田演説館立面図

演説館は、150年の間に保存修繕が何度も行われている。元々、三田キャンパスの塾監局と図書館旧館の間に建っていたが、大正12年の関東大震災をきっかけに、今の場所に移築されると同時に、大きく修繕された。昭和20年の戦災では、三田キャンパスは甚大な被害を蒙ったが、なんとか、焼失は免れた。その後の昭和22年に、老朽化や破損した個所を大幅に修繕している。平成8年には15カ月にわたり、全面的な大改修が行われ、同時に耐震補強も施された。現在、椅子は144席が用意されているが、この椅子は昭和50年に演説館開館100年を記念して寄付されたものである。

三田演説館内観

演説館のその価値は、歴史的、建築的、そして教育的な面にわたる。自らの言葉で語ることの重要性を肌で感じる場として、生きた教育遺産として、その意義を今後も次の世代に継承していく。

(管財部 渡辺浩史)

※所属・職名等は本誌発刊当時のものです。